The real estate agency
Terug naar overzicht

Rösener Manzstraat 77 C

Verkocht
Aanvaarding: Datum
  • 130 mensen hebben deze woning recent bekeken
  • 34 mensen hebben deze woning recent gedeeld

€ 250.000,00 k.k. Reageer nu

Algemeen

  • 1 Slaapkamer(s)
  • 52 m2
  • bouwjaar 1951

Eigenschappen

Object nr.
01002
Slaapkamer(s)
1
Kamers
2
Badkamers
1
Etages
1
Energie label
E

Faciliteiten

  • Balkon
  • Schuur / berging
  • Parkeerplaats

Over deze woning

Aan de groene en rustige Rösener Manzstraat, in de wijk Tussendijken, ligt dit lichte en netjes afgewerkte 1-kamer appartement. Het appartement van 52m² is gelegen op de 2e verdieping en kijkt uit over een charmant parkje. De woning is volledig gerenoveerd in 2020.
De directe omgeving biedt alles wat wonen comfortabel maakt: op loopafstand vind je diverse winkels, horeca, supermarkten, openbaar vervoer (metro Marconiplein, tram en bus) en binnen enkele minuten fiets je naar het centrum, het Dakpark, Big Shops en de gezellige Vierhavensstraat. Uitvalswegen zoals de A13 en A20 zijn snel bereikbaar, waardoor ook forenzen hier ideaal wonen.

De VvE werkt actief aan verduurzaming en heeft het traject gestart voor de renovatie en isolatie van de volledige gevels en het dak. De selectie van de aannemer loopt momenteel, met uitvoering gepland binnen circa 3 tot 9 maanden. Voor deze werkzaamheden zijn geen aanvullende kosten verschuldigd, daar de huidige eigenaar hiervoor reeds een extra bijdrage heeft voldaan. Deze renovatie zal naar verwachting leiden tot een aanzienlijke verbetering van het energielabel. De maandelijkse VvE-bijdrage bedraagt €114 per maand.

//

This bright and neatly finished 1-bedroom apartement is located at the green and quiet Rösener Manzstraat, in Tussendijken. The 52m² apartement is located on the 2nd floor and overlooks a charming park. The property was completely renovated in 2020.
The immediate vicinity offers everything you need for comfortable living: within walking distance you will find various shops, restaurants, supermarkets, public transport (Marconiplein metro, tram and bus) and within a few minutes you can cycle to the city centre, the Dakpark, Big Shops and the lively Vierhavensstraat. Major roads such as the A13 and A20 are easily accessible, making this an ideal place to live for commuters.

The VVE is actively working on sustainability and has started the process of renovating and insulating the entire facades and roof. The selection of the contractor is currently underway, with implementation planned within approximately 3 to 9 months. There are no additional costs for this work, as the current owner has already paid an extra contribution for this. This renovation is expected to lead to a significant improvement in the energy label. The monthly VVE contribution is €114 per month.

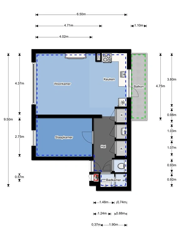
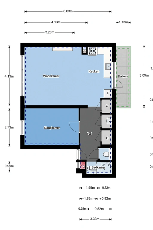
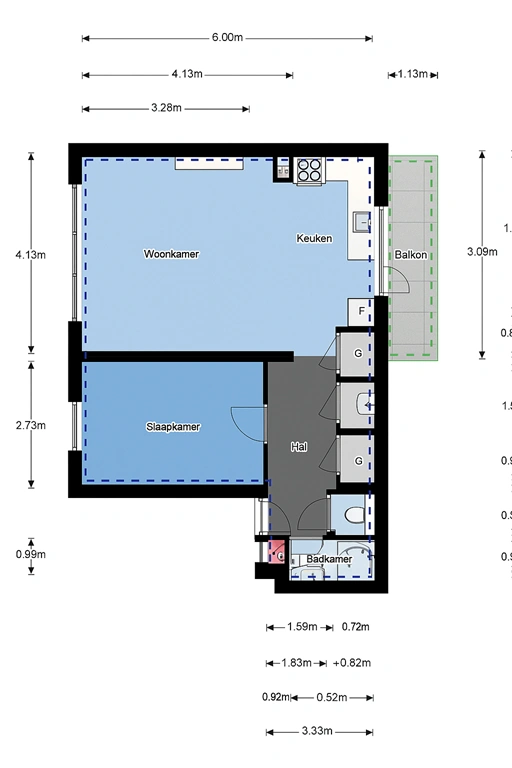
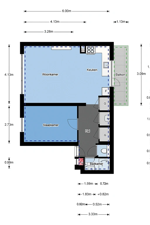
INDELING
Via de gezamenlijke entree bereik je de woning op de tweede verdieping. Je stapt binnen in een ruime hal die toegang biedt tot alle vertrekken.
De woonkamer aan de voorzijde is verrassend licht dankzij de brede raampartijen en kijkt vrij uit over het parkje. De combinatie van de lichte laminaatvloer en de strak afgewerkte wanden geeft de ruimte een moderne en rustige uitstraling.
Aan de achterzijde bevindt zich de open keuken uit 2020, voorzien van inbouwapparatuur zoals een gaskookplaat, afzuigkap, oven/magnetroncombinatie en voldoende kastruimte. Vanuit de keuken stap je direct het balkon op. De VvE staat toe om hier een overkapping/dak te plaatsen, wat extra gebruikscomfort biedt.
De slaapkamer is ruim opgezet en eveneens licht, met dezelfde nette afwerking.
De badkamer is in 2022 gerenoveerd en voorzien van een douchecabine en een wastafel met meubel. Het toilet is separaat en eveneens strak uitgevoerd.
Daarnaast beschikt de woning over een aparte kast met aansluiting voor de wasmachine en een berging in de kelder, ideaal voor fietsen, opslag of seizoensspullen.

The shared entrance leads to the apartment on the second floor. You step into a spacious hall that provides access to all rooms.
The living room at the front is surprisingly light thanks to the wide windows and offers an unobstructed view of the park. The combination of the light laminate flooring and the sleekly finished walls gives the room a modern and tranquil look.
At the rear is the open kitchen from 2020, equipped with built-in appliances such as a gas hob, extractor hood, oven/microwave combination and cabin space. From the kitchen, you step directly onto the balcony. The owners' association allows a canopy/roof to be installed here, which offers extra comfort.
The bedroom is spacious and also light, with the same neat finish.
The bathroom was renovated in 2022 and is equipped with a shower and a washbasin with cabinet. The toilet is separate and also has a sleek design.
In addition, the property has a separate closet space with a connection for the washing machine and a storage room in the basement, ideal for bicycles, storage or seasonal items.BIJZONDERHEDEN
• 52m² woonoppervlakte
• Volledig gerenoveerd in 2020
• Badkamer vernieuwd in 2022
• Balkon aan achterzijde
• Dubbel glas en kunststof kozijnen
• Privé berging in de kelder
• Gezamenlijke berging van 15m2
• Parkeervergunningen mogelijk
• VvE-bijdrage €342 per kwartaal, €114 per maand
• Eigen grond
• Glasvezel internet aanwezig
• Beschikbaar per 02-03-2026

//

DETAILS
• 52m² living space
• Completely renovated in 2020
• Bathroom renovated in 2022
• Balcony at the rear
• Double glazing and plastic window frames
• Private storage room in the basement
• Shared storage room of 15m2
• Parking permits available
• VVE contribution €342 per quarter / €114 per month
• Own ground
• ibreglass internet available
• Available from 02-03-2026

De Meetinstructie is bedoeld om een meer eenduidige manier van meten toe te passen voor het geven van een indicatie van de gebruiksoppervlakte. De Meetinstructie sluit verschillen in meetuitkomsten niet volledig uit, door bijvoorbeeld interpretatieverschillen, afrondingen of beperkingen bij het uitvoeren van de meting.
Alle verstrekte informatie moet beschouwd worden als een uitnodiging tot het doen van een bod of om in onderhandeling te treden. Er kunnen geen rechten worden ontleend aan deze woninginformatie.

Deze informatie is door ons met de nodige zorgvuldigheid samengesteld. Onzerzijds wordt echter geen enkele aansprakelijkheid aanvaard voor enige onvolledigheid, onjuistheid of anderszins, dan wel de gevolgen daarvan. Alle opgegeven maten en oppervlakten zijn indicatief.


Kaart

  • 130 mensen hebben deze woning recent bekeken
  • 34 mensen hebben deze woning recent gedeeld

€ 250.000,00 k.k. Reageer nu
Recent bekeken