The real estate agency
Terug naar overzicht

Gedempte Zalmhaven

Nieuw
Beschikbaar per: 11-02-2026
  • 106 mensen hebben deze woning recent bekeken
  • 28 mensen hebben deze woning recent gedeeld

€ 2.495,00 excl. Reageer nu

Algemeen

  • 2 Slaapkamer(s)
  • 85 m2

Eigenschappen

Object nr.
10657
Slaapkamer(s)
2
Kamers
3
Energie label
A++
Vloer
PVC

Faciliteiten

  • Bad
  • Lift
  • Centrale verwarming
  • Balkon
  • Garage
  • Parkeerplaats
  • Kelder

Over deze woning

Luxe gemeubileerd 3-kamer appartement aan de Gedempte Zalmhaven te Rotterdam. Dit net afgewerkte hoek-appartement is gelegen op de 17e etage met skyline uitzicht over 'de Maas' en 'Het park'. Dit prestigieus appartementencomplex aan de Maas ligt in het populaire Scheepvaartkwartier te midden van groene parken, historie en kunst, cultuur, het stadscentrum en alles wat Rotterdam te bieden heeft.


In De Zalmhaven woont u vlakbij de oever van de Maas, het groenste gebied van de binnenstad en op loopafstand van het culturele hart van Rotterdam. De Zalmhaven bevindt zich in het originele, authentieke Scheepvaartkwartier. Hier woont u chic-maritiem, groen en tegelijkertijd urbaan. De zalmhaven is tevens goed te bereiken met de auto en met de tram en waterbus op loopafstand.


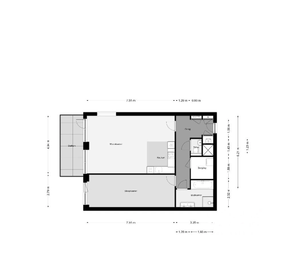
Indeling
Begane grond
Gezamenlijke royale entree met brievenbussen, bellentableau, liften en toegang tot de garage.

17e etage
U komt het appartement binnen in de L vormige hal met toegang tot alle vertrekken.
De woonkamer met open keuken vormt het hart van de woning. De woonkamer beschikt over een 3-persoons bank en bijbehorende fauteuil, een salontafel, vloerkleed, tv en tv-meubel. Verder scheidt de eettafel met 4 stoelen, het zitgedeelte van de keuken.
De keuken is afgewerkt met strakke, zwarte kasten en een wit keukenblad en beschikt over een inductiekookplaat, vaatwasser, afzuigkap, combi-oven/magnetron, koelkast, vriezer en veel opbergruimte.
Direct vanuit de woonkamer heeft u toegang tot de 2 slaapkamers. Slaapkamer 1 is ingericht met een 2 persoons bed en kledingkast. Slaapkamers 2 ( kamer 2 wordt binnenkort gerealiseerd ) kan optioneel ingedeeld worden als eveneens een slaapkamer of een kantoor.
De badkamer is net afgewerkt met grijze tegels en een marmerlook ligbad met bubbelfunctie. Ook beschikt de badkamer over een inloopdouche en wastafelmeubel en spiegel. Het separate toilet met fontein heeft dezelfde marmerlook als in de badkamer en is bereikbaar vanuit de hal.
Inpandige berging waar de wasmachine staat opgesteld.
Vanuit de woonkamer is er ook toegang tot een ruim balkon met uitzicht op de Maas. Hier geniet u van een prachtige zonsondergang.Het gehele appartement is afgewerkt en ingericht met hoogwaardige kwaliteit materialen en meubels. De glazen afscheidingswanden tussen de woonkamer en slaapkamers worden nog geplaatst.

De parkeerplaats in de parkeergarage is optioneel erbij te huren voor €150 per maand.
De huurprijs wordt verhoogt met een voorschot voor stookkosten.

Deze informatie is door ons met de nodige zorgvuldigheid samengesteld. Onzerzijds wordt echter geen enkele aansprakelijkheid aanvaard voor enige onvolledigheid, onjuistheid of anderszins, dan wel de gevolgen daarvan. Alle opgegeven maten en oppervlakten zijn indicatief.


Kaart

  • 106 mensen hebben deze woning recent bekeken
  • 28 mensen hebben deze woning recent gedeeld

€ 2.495,00 excl. Reageer nu

Wil je de reistijd weten van je woon-werk verkeer?

Vul het adres van je werk hieronder in!

Bereken reistijd
Recent bekeken